Our Projects
Some of our projects executed for our clients.
Romania
Lamella Settling Station
Ozone Disinfection Station
Filtration Station
_______________________________________________
Danone Türkiye Wastewater Treatment Plant Retrofitting


Türkiye
Modification on the Pre-Treatment System
Retrofitting of Biological Treatment Aeration System
_______________________________________________
Ice Cream Factory Wastewater Treatment Plant Construction


Türkiye


Pre-Treatment with Dissolved Air Flotation
Biological Treatment with MBBR
Sludge Dewatering with Centrifugal Decanter
_______________________________________________
Balaban Gıda Well Water Treatment and Softening Plant


Türkiye


Membrane Treatment with Reverse Osmosis (RO)
Ion Exhange Softening
_______________________________________________
Kalender Textile Water Treatment and Softening Plant


Türkiye


Membrane Treatment with Reverse Osmosis (RO)
Ion Exhange Softening
Fire Fighting Pump Station
Rain Water Collection System
_______________________________________________
Shabran & SiyezenWastewater Treatment Plants


Azerbaijan


Biological Wastewater Treatment Plants
Water Distribution Networks
Sewer Networks
Pump Stations and Pipelines
_______________________________________________
Balchik Integrated Water Project


Bulgaria


Pump Stations
Water Reservoir and Dry Gallery
Chlorine Disinfection Station
_______________________________________________
Optimisation Study for Karabatan Utility Services (KUS) WWTP


Atyrau/Kazakhstan


Design Review
Process and Mass Balance Calculations
_______________________________________________
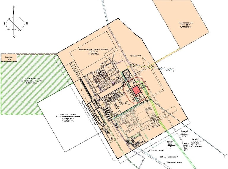
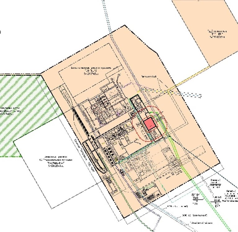
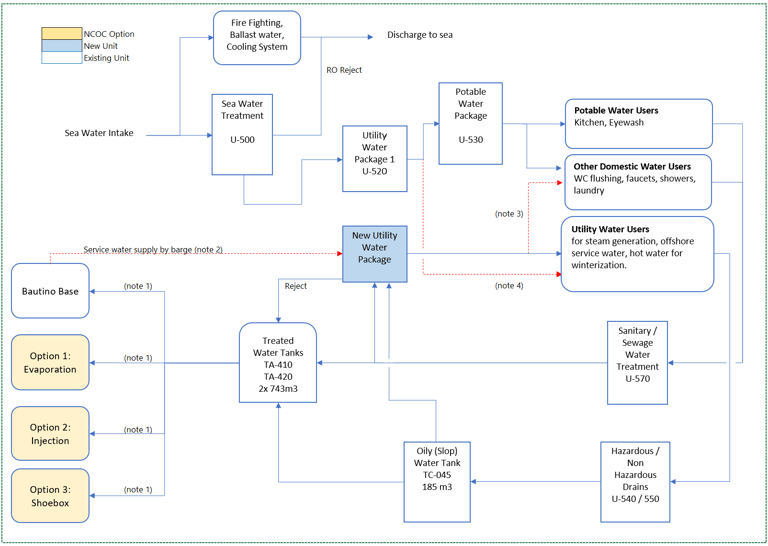
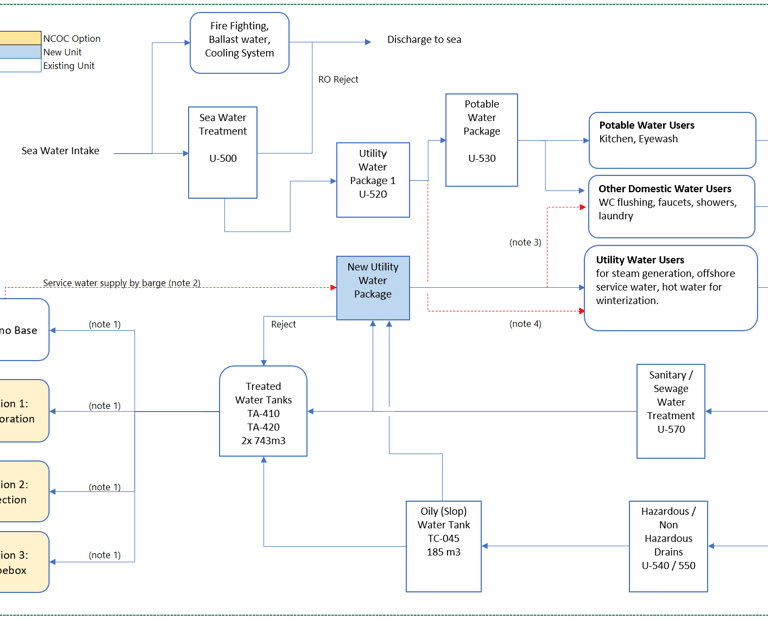
Concept Screening for Kashagan D-Island Water Management Program


Atyrau/Kazakhstan


Concept Design for Water and Wastewater Treatment
Water Balance and Water Management Report
_______________________________________________
CaTRo Cargo Transportation Terminal Water and Wastewater Treatment Plants
Aktau/Kazakhstan


Design, build and installation of Potable Water Treatment Plant
Design, build and installation of Wastewater Treatment Plant




